Tổng quan
The Nest (MIDORI PARK The Nest) là biểu tượng căn hộ cao cấp mới nhất từ chủ đầu tư Becamex Tokyu, kiêu hãnh tọa lạc tại tâm điểm đại đô thị MIDORI PARK, Thành phố Mới Bình Dương.
Với triết lý kiến tạo một "Tổ ấm" đích thực, dự án được thiết kế tinh bản dành riêng cho thế hệ cư dân trẻ, những người khao khát tìm về sự cân bằng giữa nhịp sống đô thị năng động và không gian tĩnh tại chuẩn Nhật.
Dự án sở hữu quy mô ấn tượng với hai tòa tháp được quy hoạch bài bản:
- Tòa West Tower: Cao 16 tầng, mang đến không gian sống hiện đại với 389 căn hộ tối ưu công năng.
- Tòa East Tower: Vươn cao 25 tầng với 583 căn hộ, kiến tạo nên một cộng đồng cư dân văn minh và sôi động.
- Trạng thái2027
- Diện tích10,697m2
- Vị tríP. Bình Dương, Tp. HCM
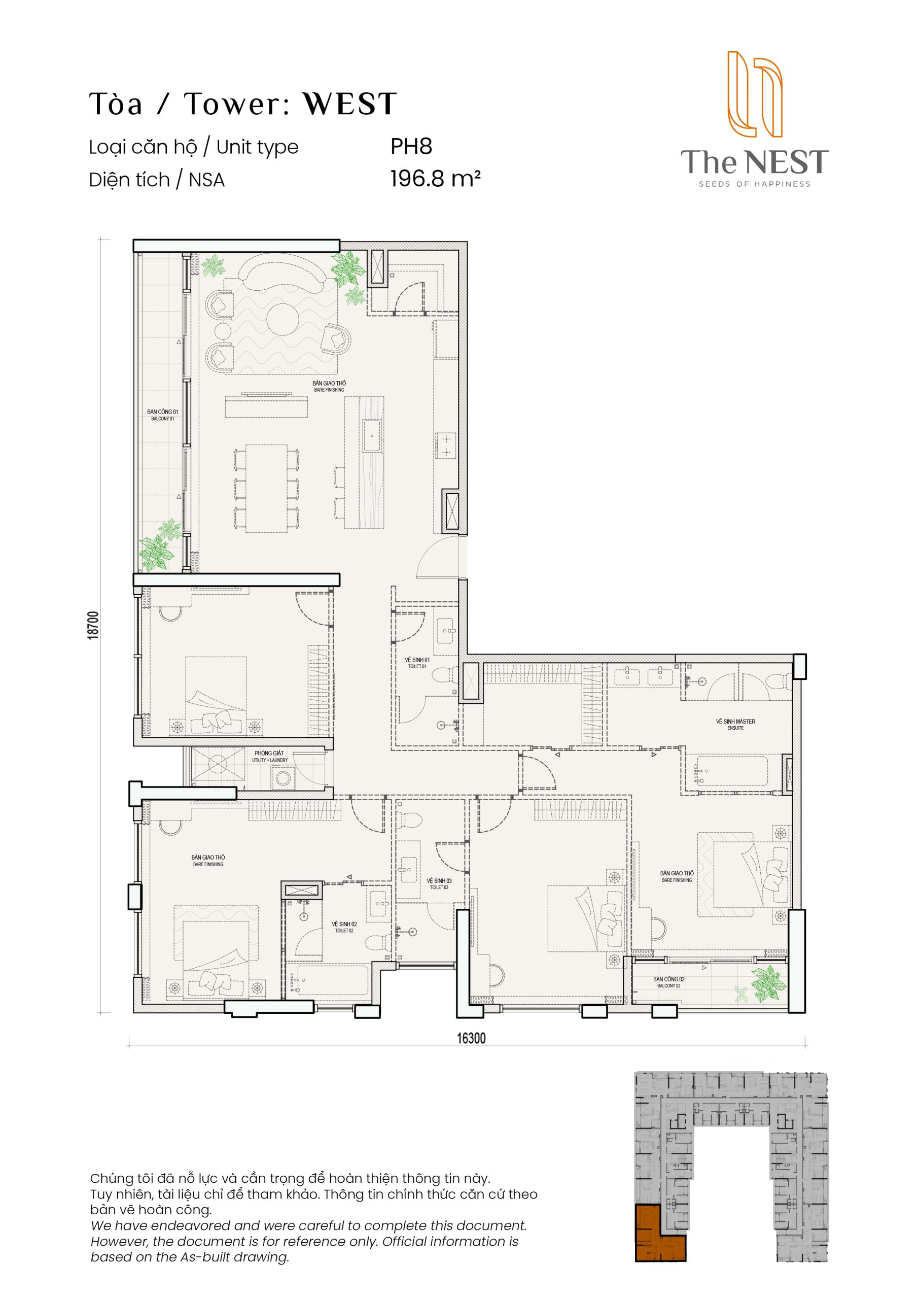
- LoạiCăn hộ, Duplex, Penthouse
- Số lượng972
Tiện Ích
Sở hữu không gian sống thuần khiết chuẩn Nhật, The Nest dành tới 62% diện tích cho mảng xanh và tiện ích. Hệ sinh thái tại đây đáp ứng trọn vẹn nhu cầu từ rèn luyện thể chất tại phòng Gym hiện đại, sân bóng rổ đến thư giãn tuyệt đối tại hồ bơi tầng 4 và công viên Greenway dài 191m. Đây chính là tổ ấm lý tưởng để nuôi dưỡng năng lượng và gắn kết gia đình cư dân trẻ.
Hệ thống bảo mật 2 cấp độ
Video Door Phone
Khu vui chơi dành cho trẻ em
Phòng chăm sóc trẻ em
Hệ thống Gym & Yoga
Hồ bơi tràn viền
Phòng sinh hoạt cộng đồng
Công viên Greenway
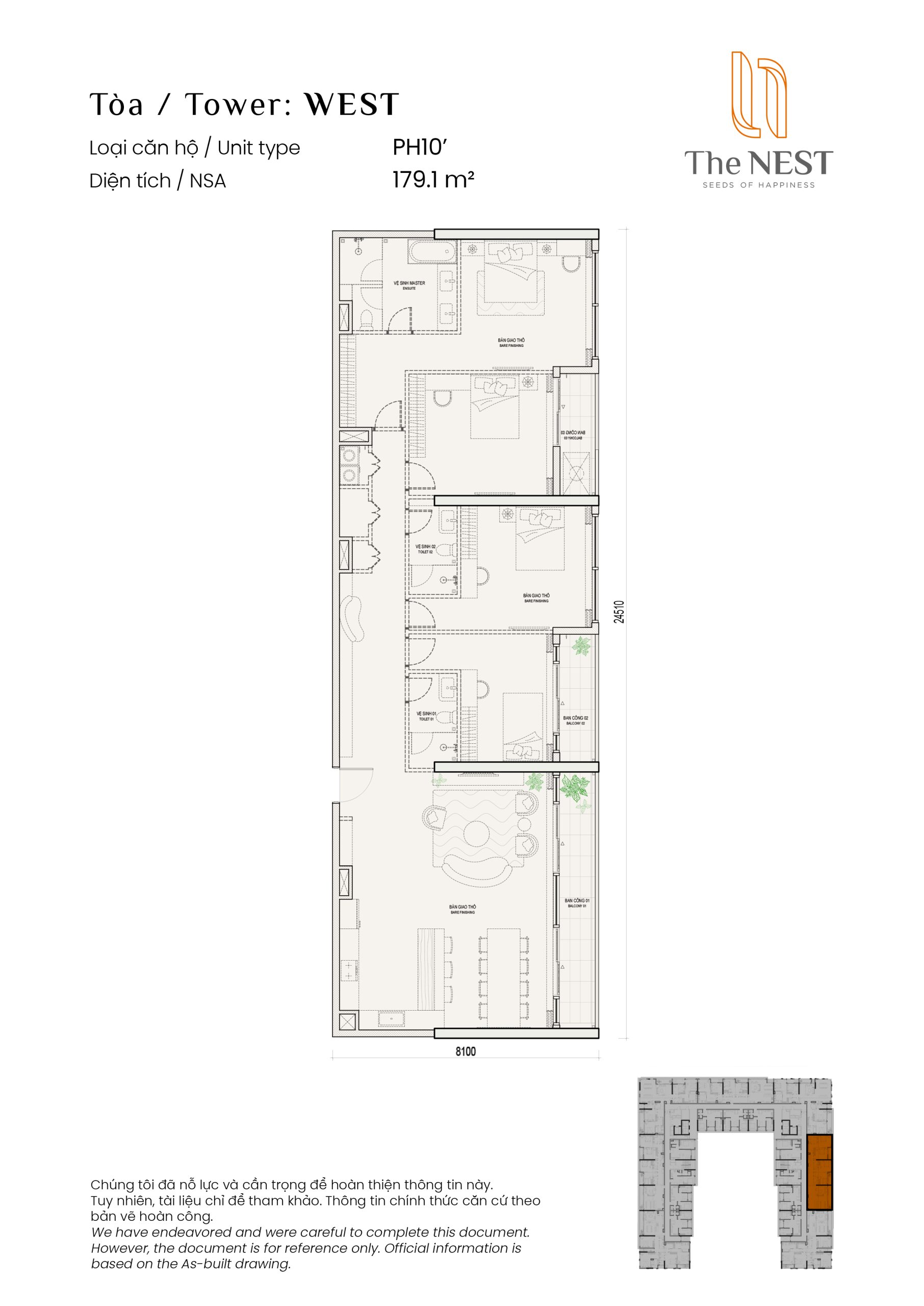
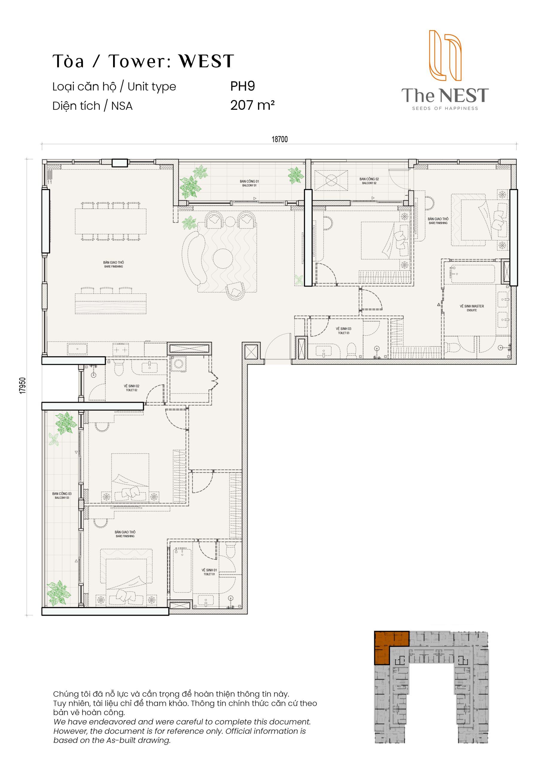
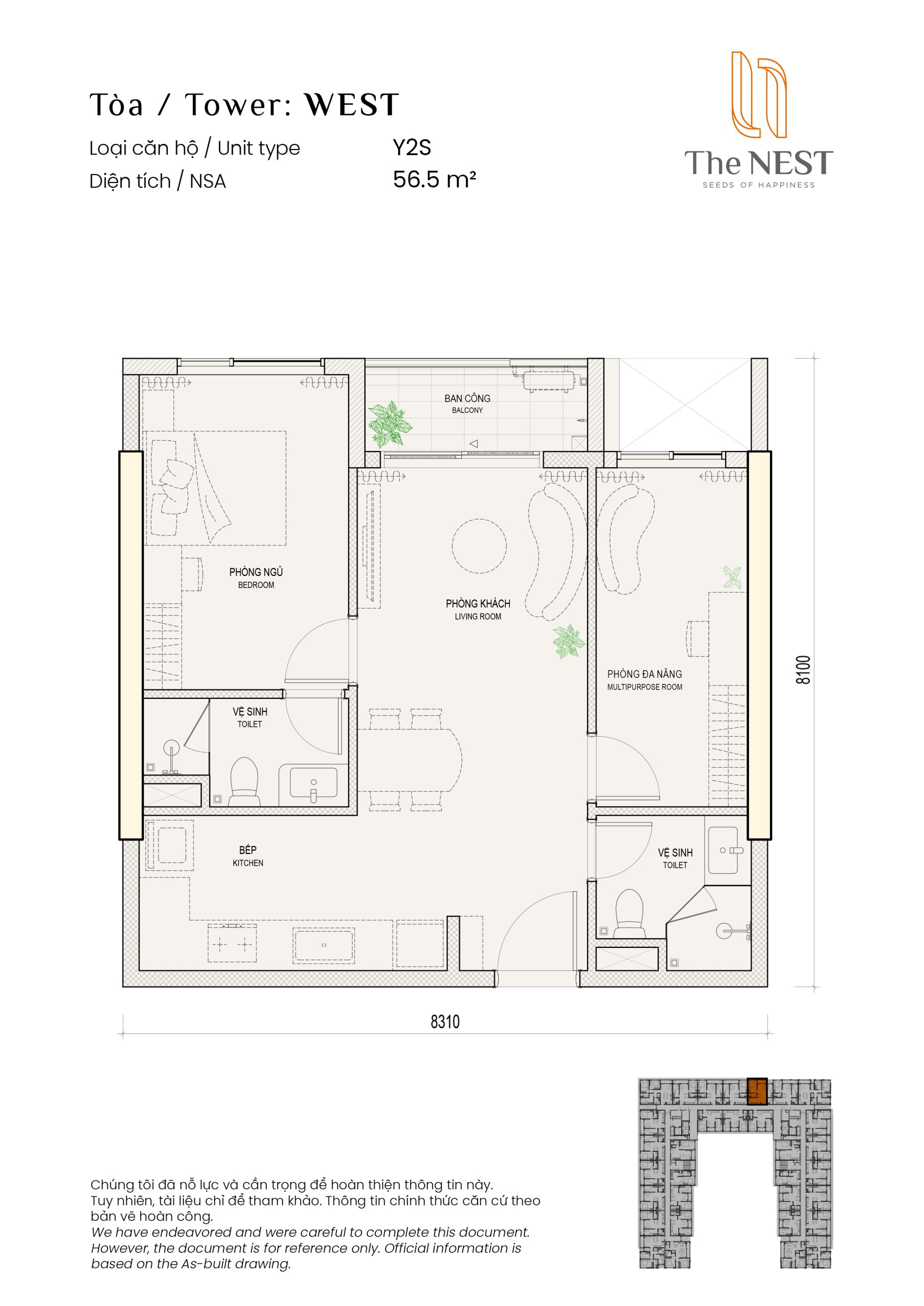
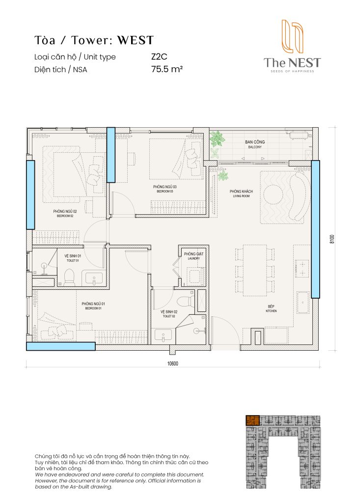
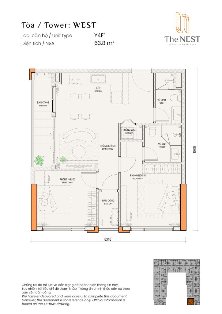
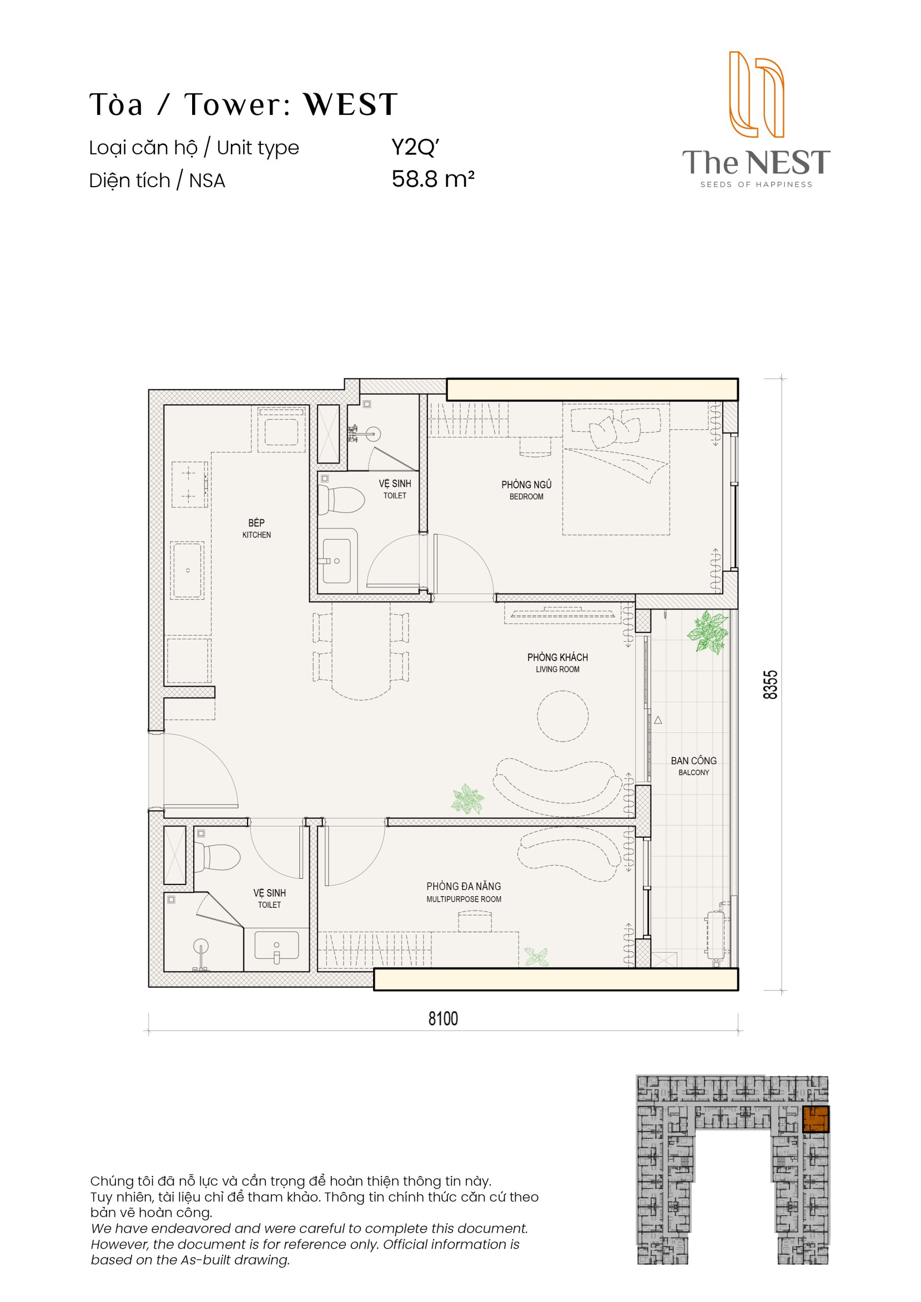
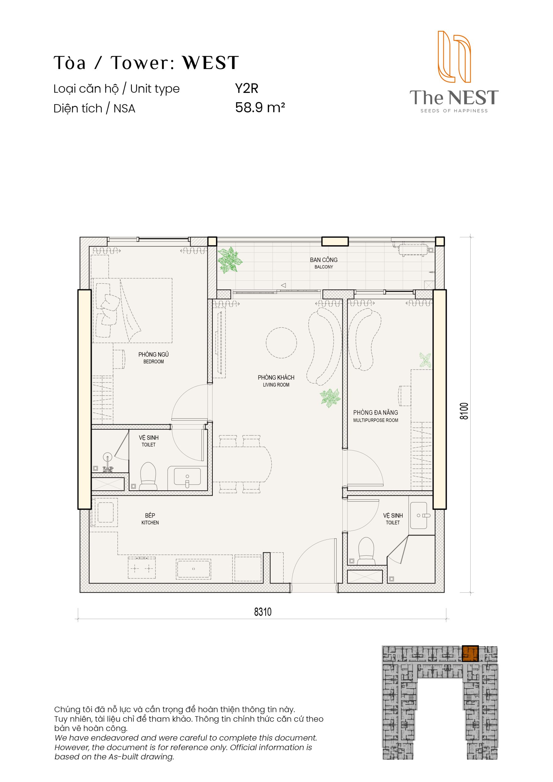
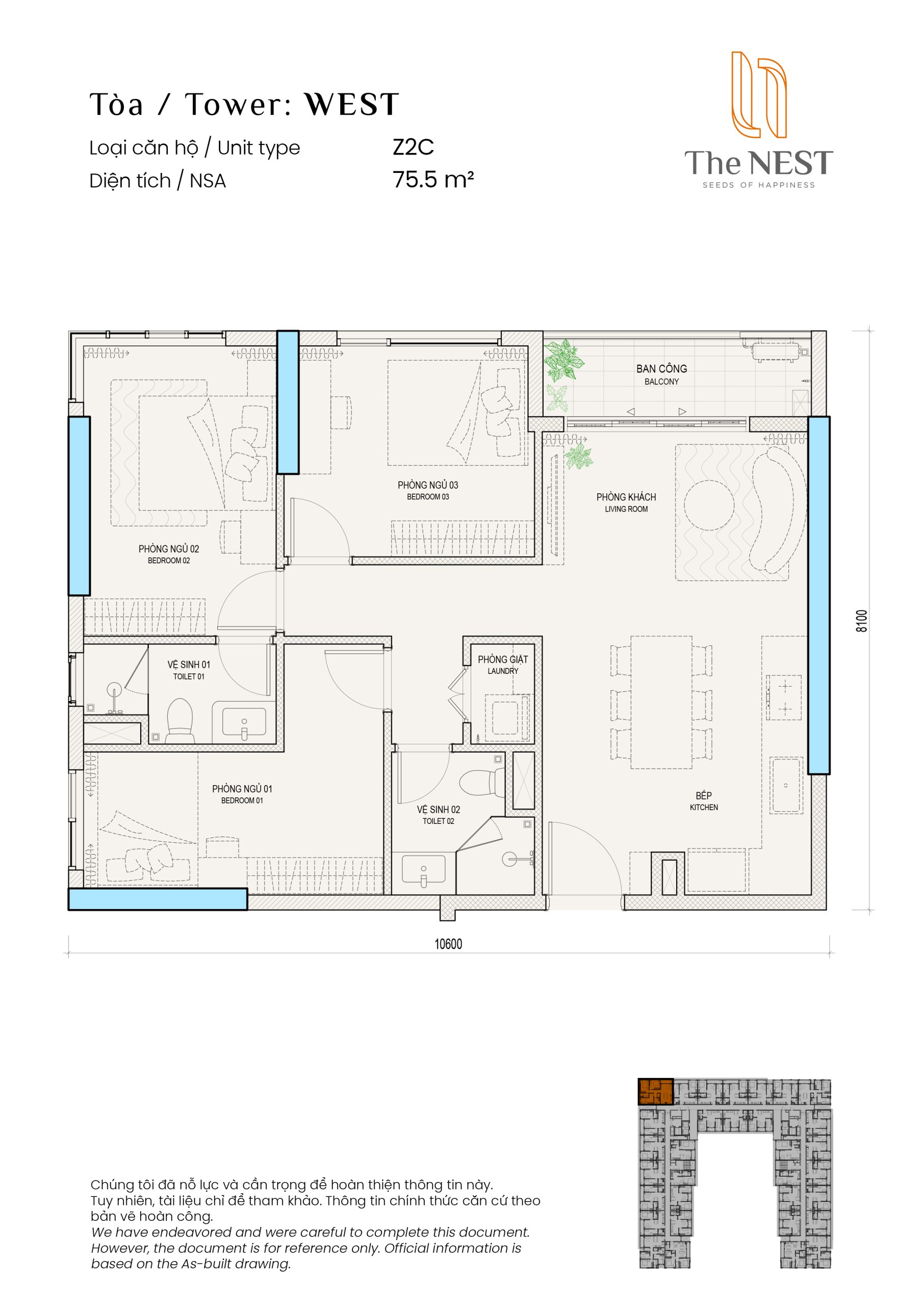
Bản Thiết Kế
Bấm để xem ảnh phóng to
Layout căn hộ 1PN1+2WC diện tích sàn 56.5m2
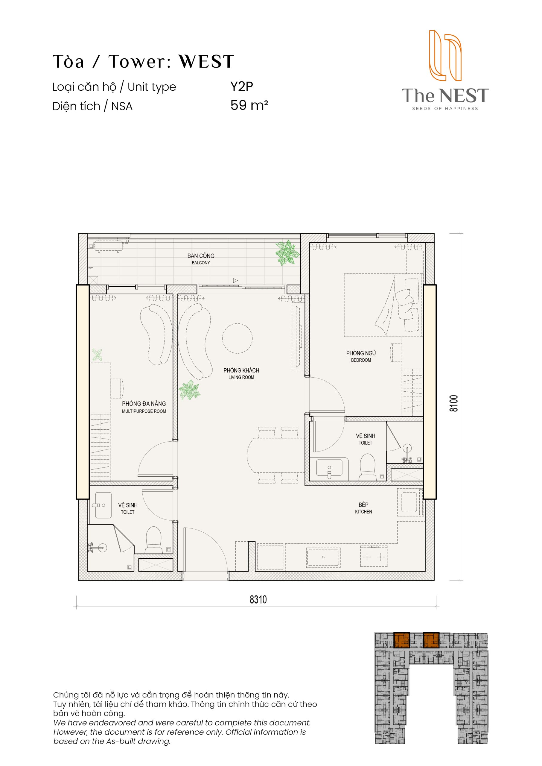
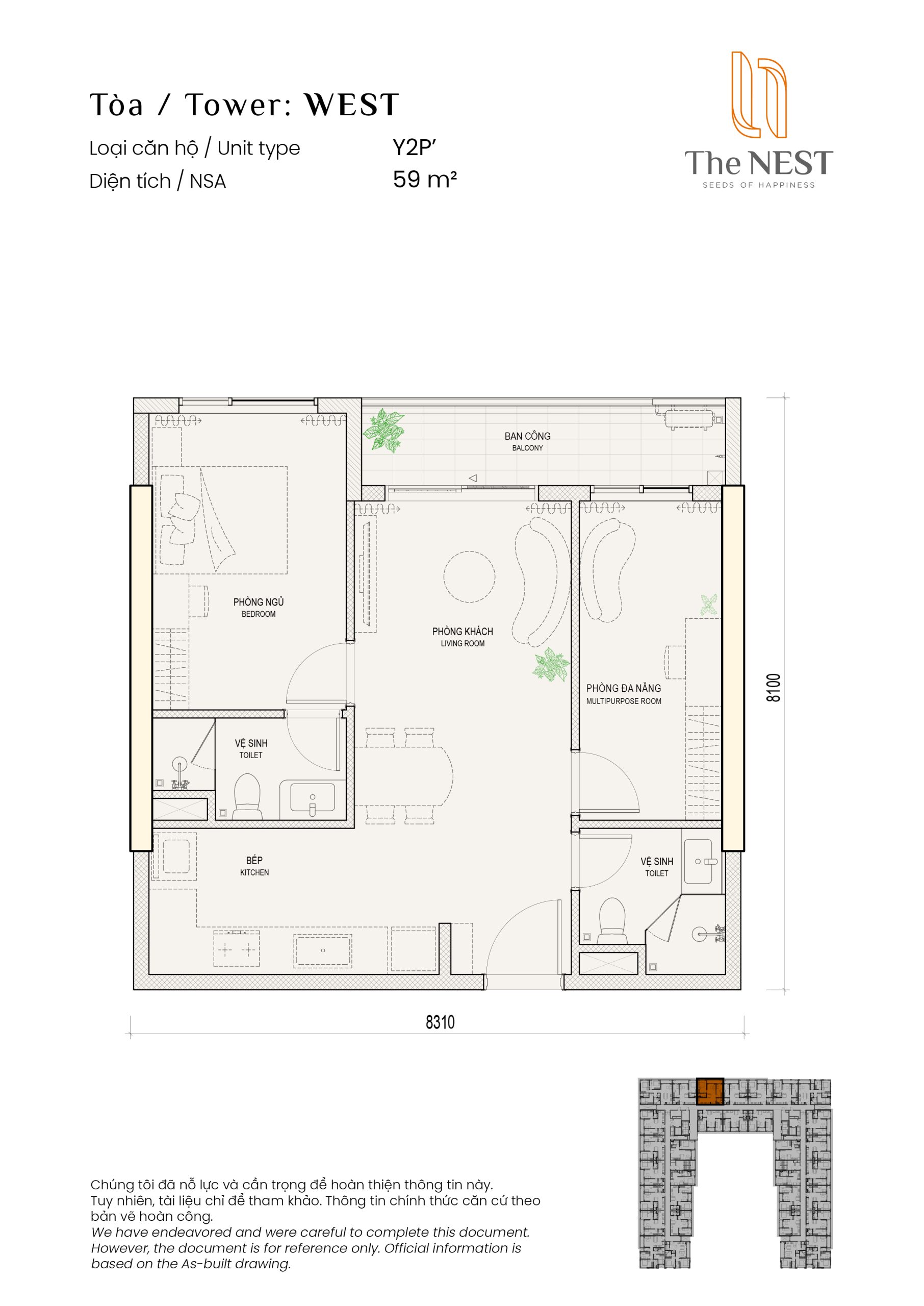
Layout căn hộ 1PN1 +2WC diện tích sàn 59m2
TVC Dự Án The Nest - Becamex Tokyu
The Nest (MIDORI PARK The Nest) là dự án căn hộ cao cấp trọng điểm của chủ đầu tư Becamex Tokyu, tọa lạc tại trái tim Thành phố Mới Bình Dương. Được định vị là dòng sản phẩm “Young Lifestyle Condo”, dự án là lời giải hoàn hảo cho bài toán an cư của thế hệ cư dân trẻ đang tìm kiếm sự cân bằng giữa nhịp sống công việc hối hả và không gian yên bình chuẩn Nhật.
Căn hộ thiết kế riêng cho người trẻ
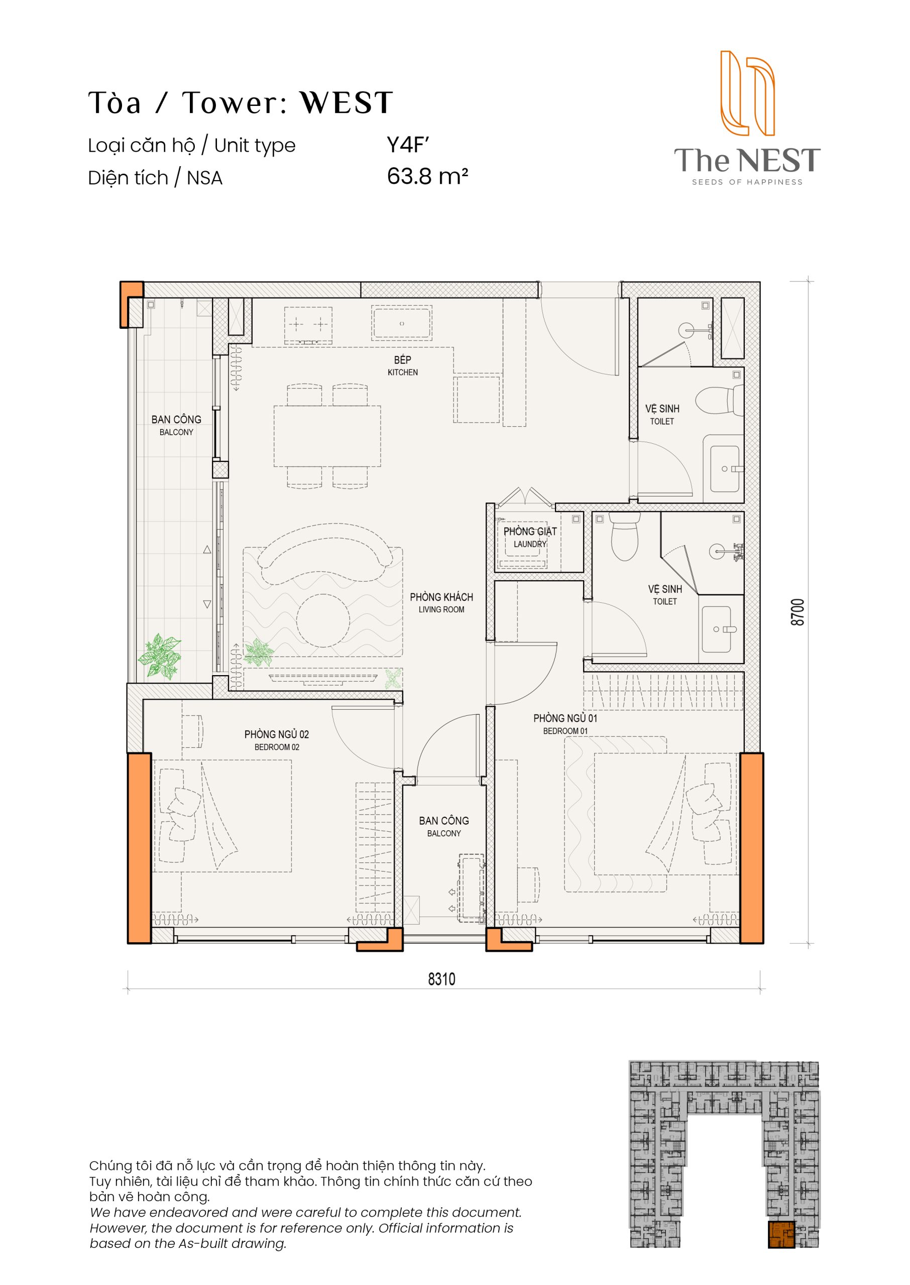
- Diện tích linh hoạt: Các căn hộ có diện tích từ 34,8 m2 đến 117 m2, đặc biệt là các dòng Studio và 1-2 phòng ngủ tối ưu công năng, phù hợp với tài chính và phong cách sống của giới trẻ.
- Tiện ích “đo ni đóng giày”: Không chỉ là nơi để ở, The Nest còn là không gian sáng tạo với khu làm việc chung (Co-working space), phòng Gym & Yoga hiện đại và hồ bơi tầng thượng đẳng cấp.
- Cảnh quan chuẩn Wellness: Với 62% diện tích dành cho mảng xanh và công viên Greenway dài 191m, dự án mang đến môi trường sống xanh mát, giúp cư dân tái tạo năng lượng mỗi ngày.
Vị Trí
Địa chỉ
Lô H5 & H7, phường Bình Dương, Thành phố Hồ Chí Minh
>>> Xem tại đây: Toàn cảnh 360° dự án The Nest
Kết nối
- 3 phút: Khu ẩm thực Hikari, trung tâm ẩm thực và giải trí phong cách Nhật Bản với nhiều thương hiệu lớn.
- 8 phút: AEON Mall Thành phố Mới (SORA gardens SC)
- Khoảng 3 phút: Hệ thống trường học quốc tế như Trường Quốc tế Singapore (SIS), Trường Việt Hoa
- Khoảng 1 giờ 30 phút: Trung tâm TP. Hồ Chí Minh (Quận 1 - Dinh Độc Lập)
- Khoảng 1 giờ 15 phút: Sân bay Tân Sơn Nhất
Liên Hệ Ngay
Hãy để lại thông tin liên hệ, đội ngũ chuyên viên tư vấn của AUREAL sẽ tư vấn chi tiết về dự án, chính sách ưu đãi
và cơ hội đầu tư phù hợp nhất, giúp anh,chị lựa chọn giải pháp tối ưu và trải nghiệm tư vấn chuyên nghiệp, đẳng cấp.
Nếu có bất kỳ nhân viên nào của chúng tôi yêu cầu thanh toán bằng tiền mặt, vui lòng gọi hoặc thông báo trực tiếp theo số 0903 998 939 hoặc gửi khiếu nại đến aureal9999@gmail.com
.




