Tổng quan
The Orchard là phân khu biệt thự compound (khép kín) cao cấp thuộc dự án lớn Sycamore, do chủ đầu tư uy tín CapitaLand Development (Singapore) phát triển. Tọa lạc tại vị trí đắc địa ngay trung tâm Thành phố Mới Bình Dương, The Orchard mang đến một không gian sống hoàn hảo, kết hợp giữa sự sang trọng, riêng tư và gần gũi thiên nhiên.
Với quy mô hơn 9 ha, The Orchard cung cấp các sản phẩm nhà ở thấp tầng độc đáo, bao gồm Biệt thự Đơn lập, Song lập và Nhà phố liền kề. Điểm nhấn nổi bật là hệ thống tiện ích đẳng cấp, tiêu biểu là The Canopy – Clubhouse 5 tầng hiện đại với 26 tiện ích độc bản dành riêng cho cư dân. Dự án hướng tới một cộng đồng tinh hoa, thiết lập tiêu chuẩn sống bền vững và an ninh nghiêm ngặt hàng đầu khu vực.
-
- Chủ đầu tư: CapitaLand
- Thời gian bàn giao: bàn giao tháng 8/2025
- Trạng tháiBàn giao tháng 8/2025
- Diện tích9.1 ha
- Vị tríP. Bình Dương, Tp. HCM
- LoạiNhà phố, Shophouse, Biệt thự
- Số lượng368
Tiện Ích
Sycamore kiến tạo một không gian sống chuẩn nghỉ dưỡng với hệ thống tiện ích compound cao cấp độc quyền, mang đến trải nghiệm sống sang trọng, an toàn
và đầy đủ tiện nghi ngay ngưỡng cửa.
An ninh đa lớp 24/7
Nhà câu lạc bộ The Canopy Clubhouse
Khu vui chơi The Island
Đảo cảnh quan The Pier
Vườn cảm quan Sensory Garden
Khu tập thể thao đa năng
Hồ bơi tràn viền
Phòng tiệc và BBQ
Bản Thiết Kế
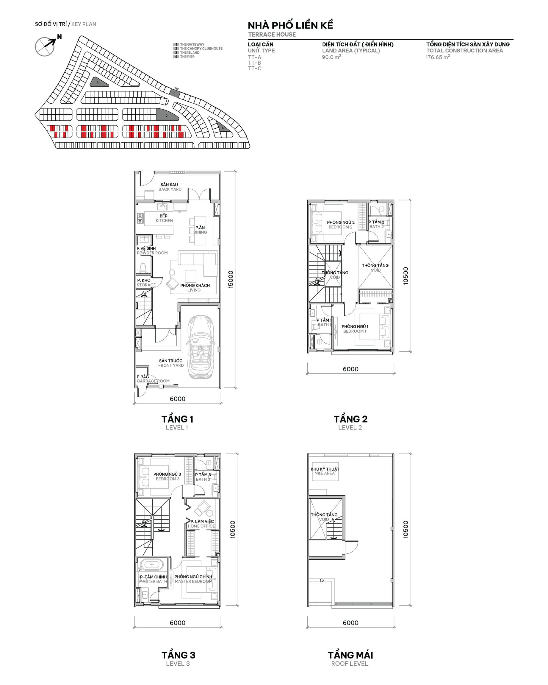
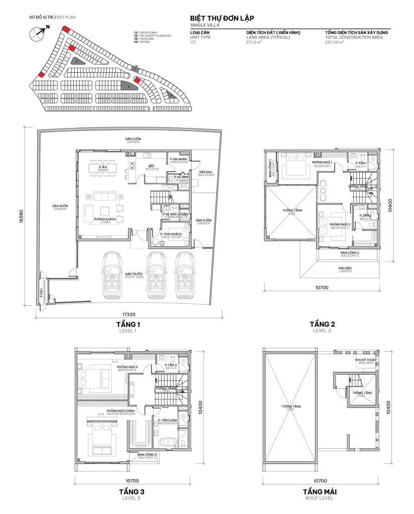
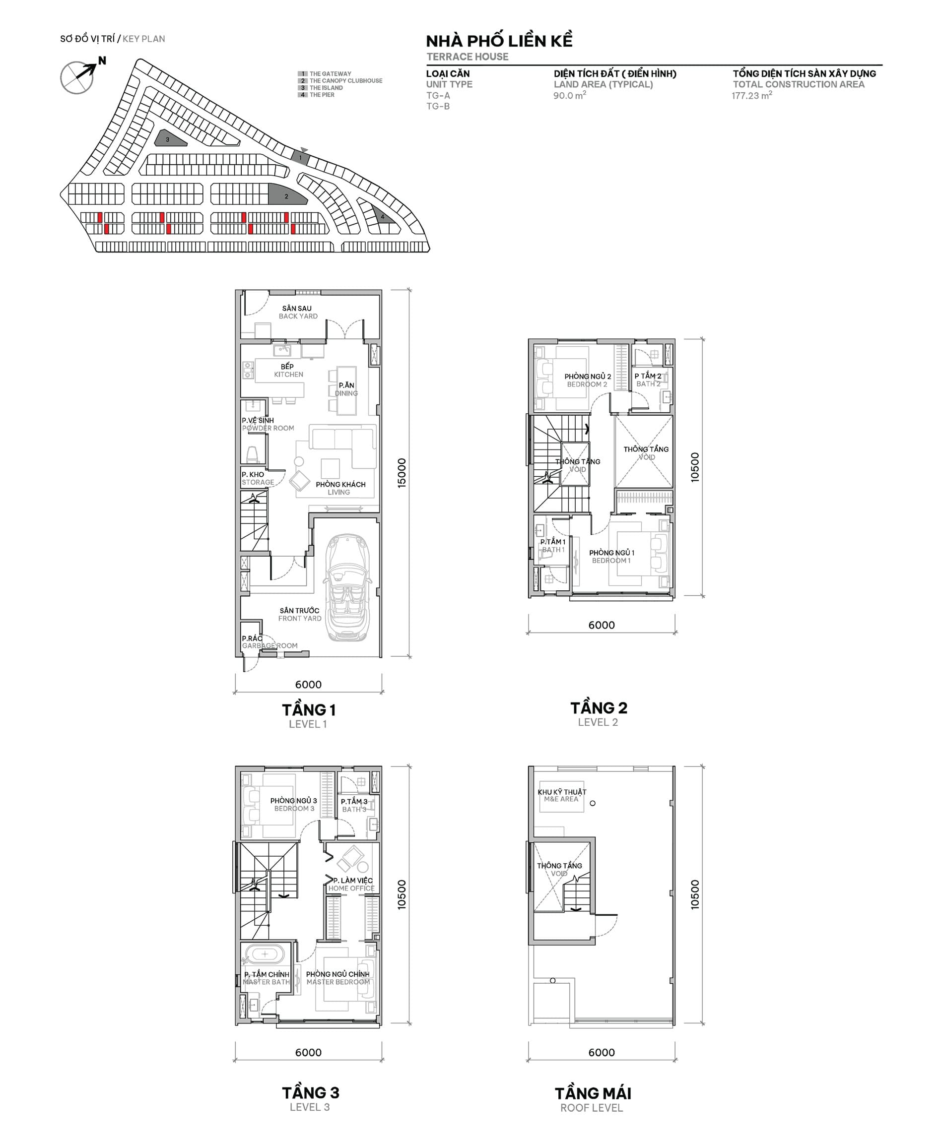
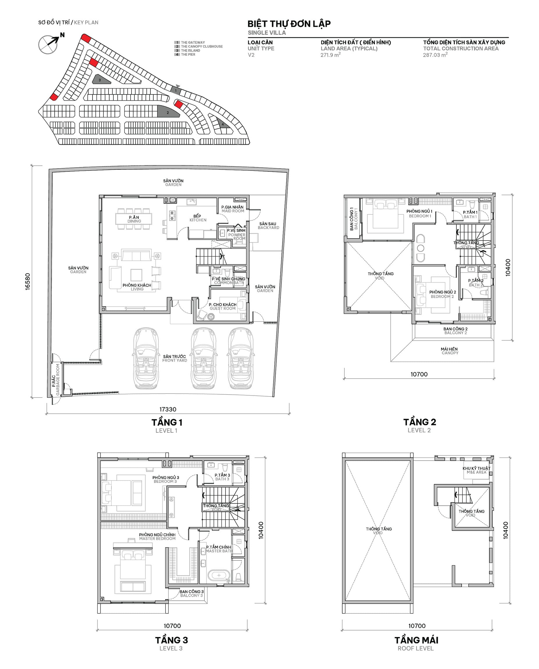
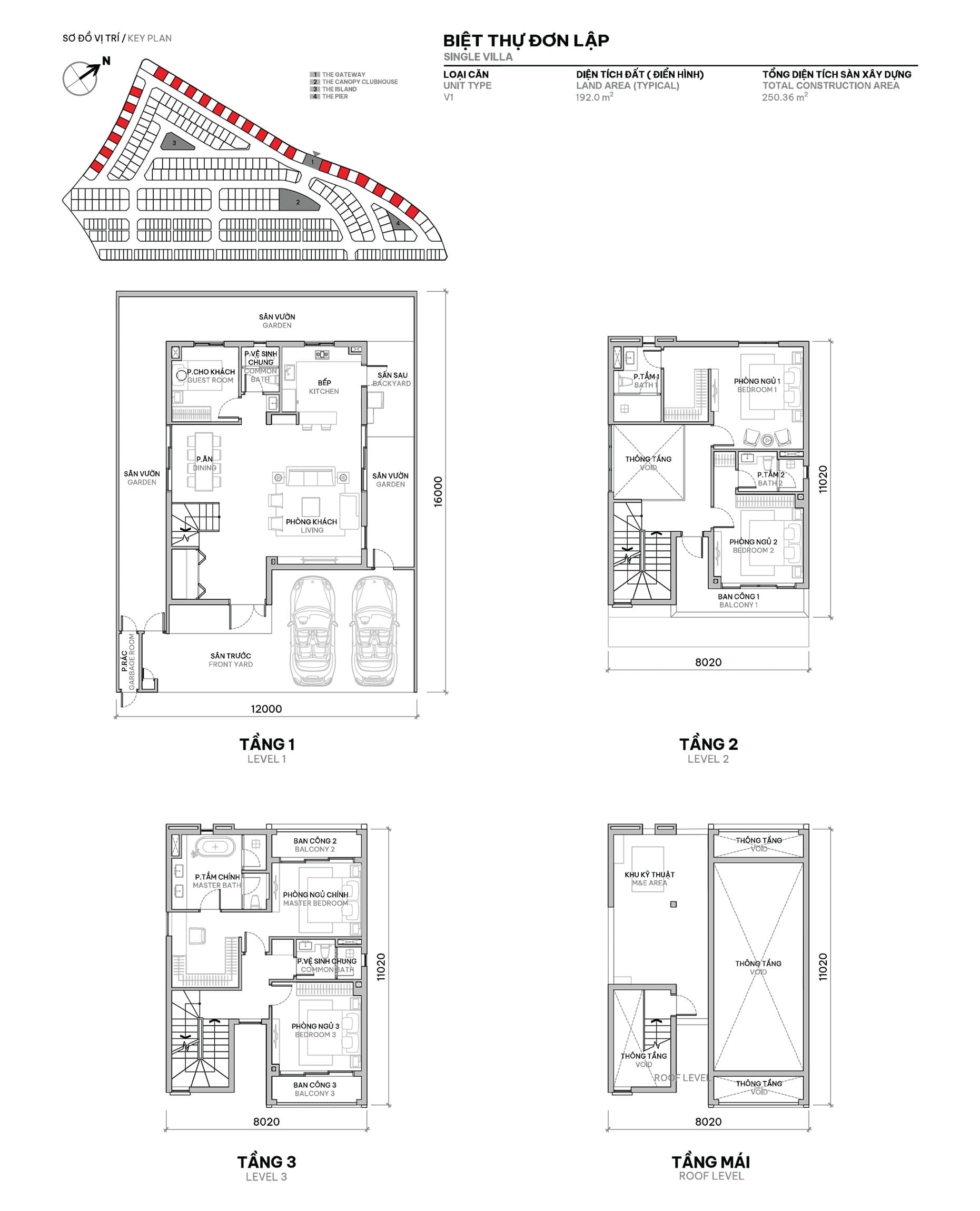
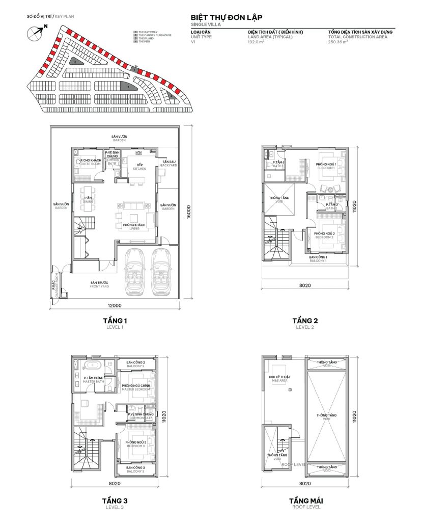
Layout nhà phố liền kề diện tích đất 90m2
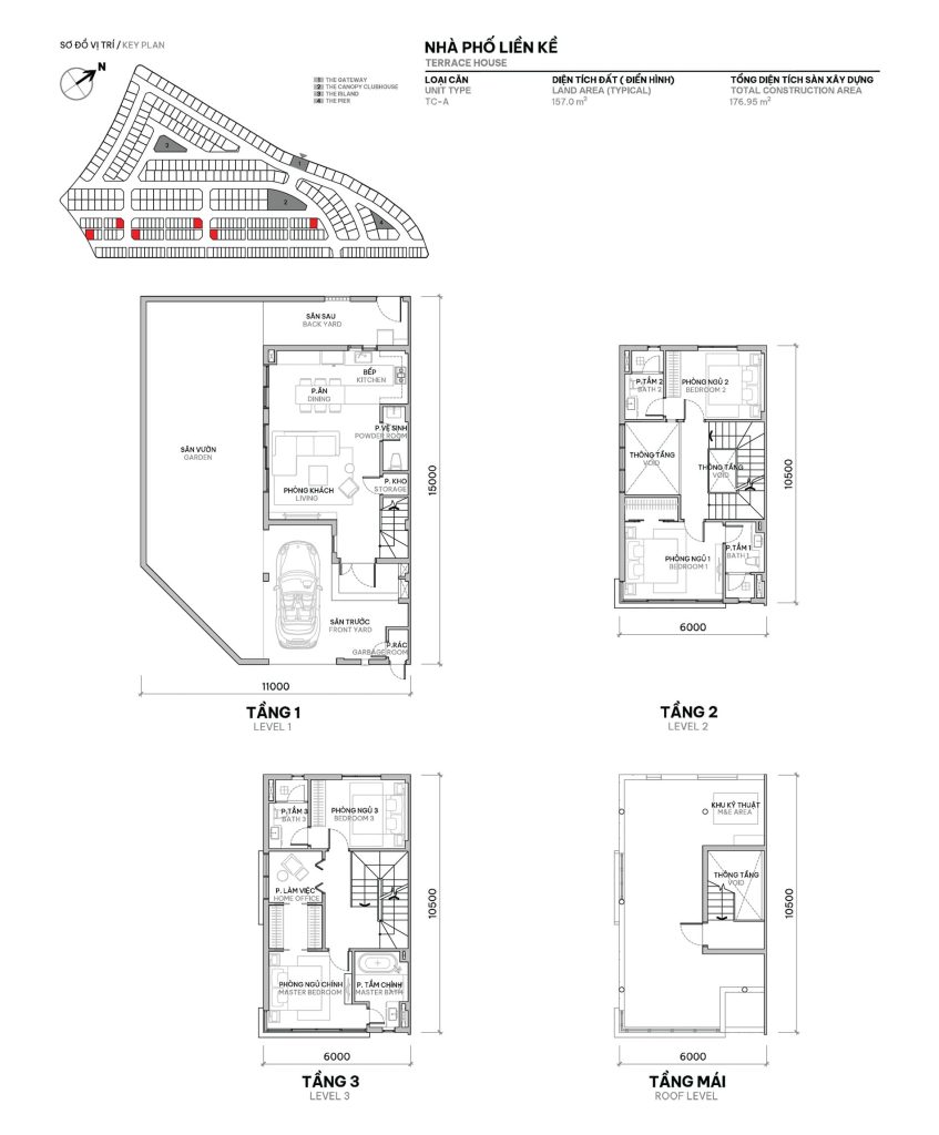
Layout nhà phố liền kề The Orchard diện tích đất 157m2
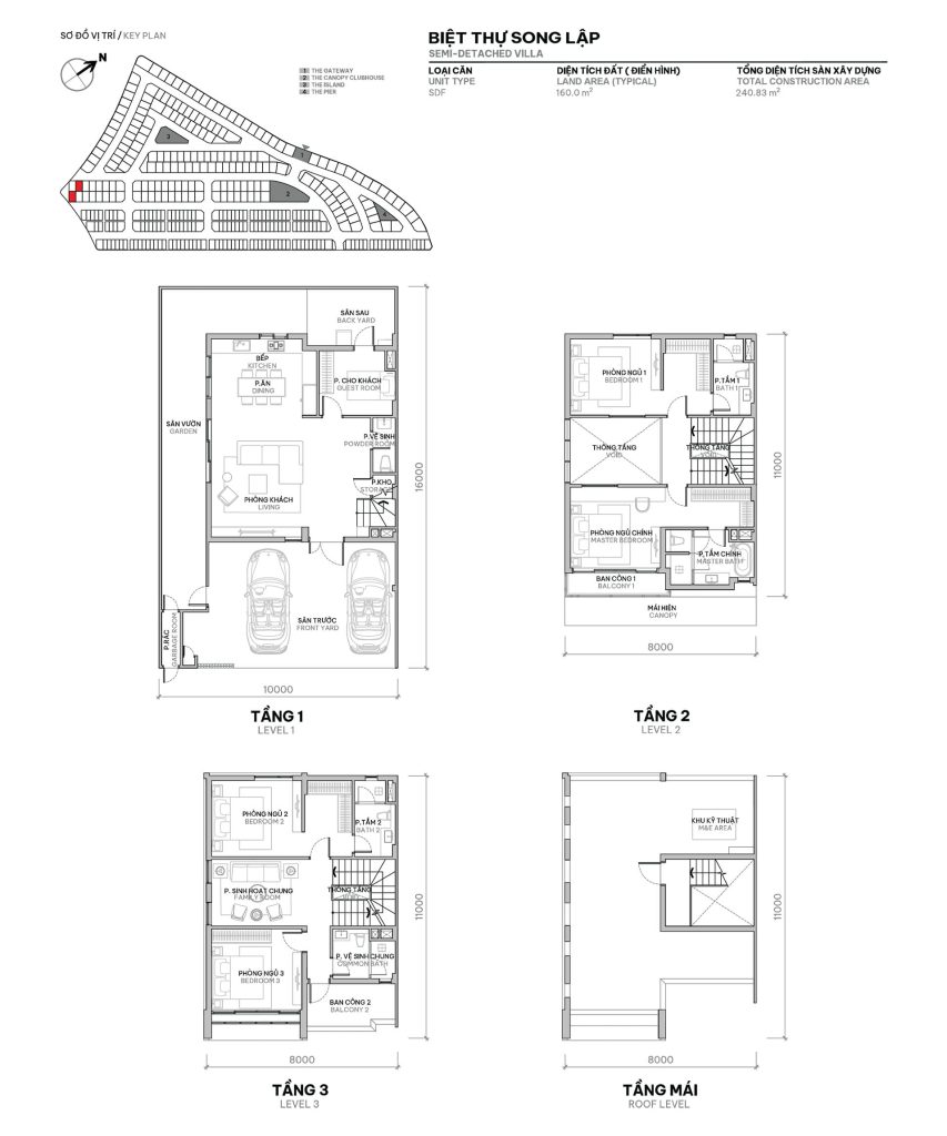
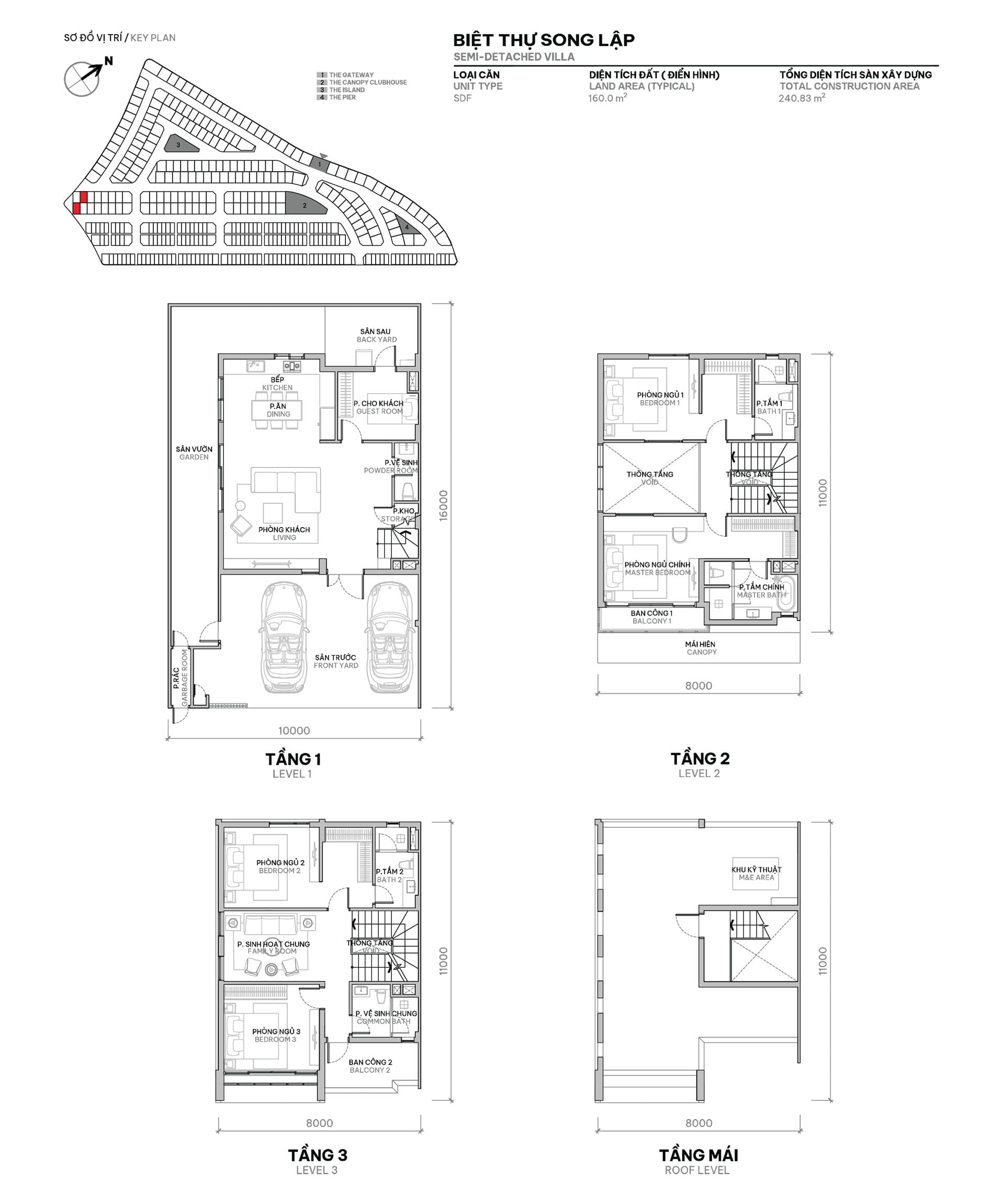
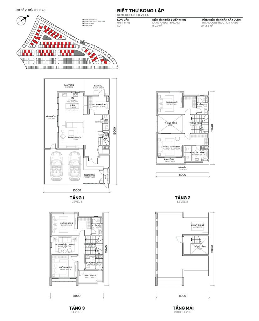
Layout biệt thự song lập The Orchard diện tích đất 160m2
Layout biệt thự song lập The Orchard diện tích đất 192m2
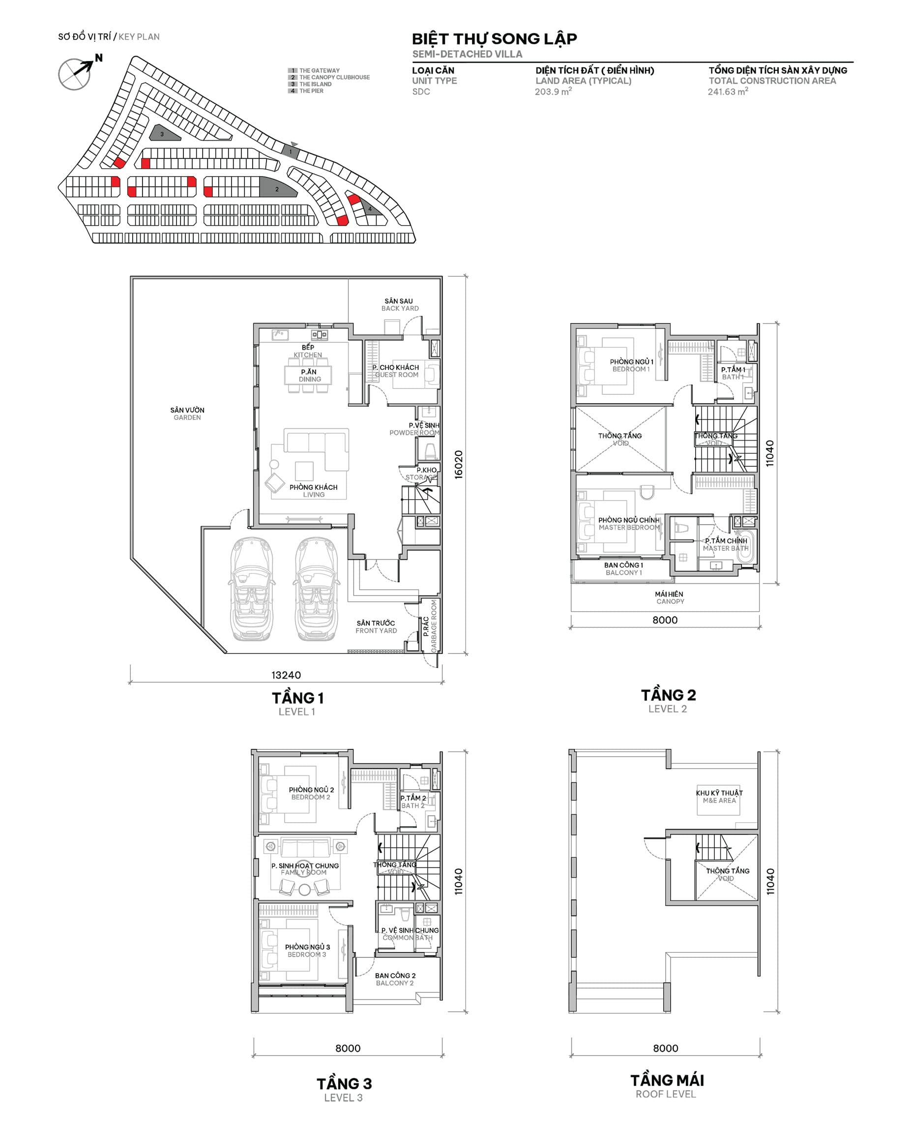
Layout biệt thự song lập The Orchard diện tích đất 203m2
Bấm để xem ảnh phóng to
Vị Trí
Địa chỉ
Đại lộ Hùng Vương, phường Bình Dương, thành phố mới Bình Dương, Thành phố Hồ Chí Minh
>>> Xem tại đây: Toàn cảnh 360° tổng dự án SYCAMORE
Kết nối
- 5 phút: Kết nối trung tâm hành chính tỉnh Bình Dương
- Kết nối nhanh chóng với các khu công nghiệp VSIP I, II, III
- Khoảng 1 giờ: Trung tâm TP. Hồ Chí Minh
- Khoảng 1 giờ: Sân bay Tân Sơn Nhất
Liên Hệ Ngay
Hãy để lại thông tin liên hệ, đội ngũ chuyên viên tư vấn của AUREAL sẽ tư vấn chi tiết về dự án, chính sách ưu đãi
và cơ hội đầu tư phù hợp nhất, giúp anh,chị lựa chọn giải pháp tối ưu và trải nghiệm tư vấn chuyên nghiệp, đẳng cấp.
Nếu có bất kỳ nhân viên nào của chúng tôi yêu cầu thanh toán bằng tiền mặt, vui lòng gọi hoặc thông báo trực tiếp theo số 0903 998 939 hoặc gửi khiếu nại đến aureal9999@gmail.com
.

